pradžia
apie
komanda
projektai
kontaktai
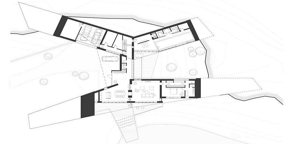
ŪKININKO SODYBA
Kategorija
Architektūra, Interjerai
Architektai Mindaugas Leliūga, Simonas Talandzevičius ir Povilas Žakauskas
×
←
→